En region de campagne

Maison à la campagne

Les maisons traditionnelles sont belles, mais vous êtes-vous déjà demandé pourquoi?

Il s'agit de proportions, de matériaux, de s'adapter au climat, au paysage, de tendre vers la beauté à travers des détails tels que la menuiserie, les tissus, les motifs ornamentaux, d'intégrer la culture dans leur esthétique, mais surtout de l'âme et de la manière des personnes qui l'ont construit.

La terrasse est un espace intermédiaire entre l'extérieur et l'intérieur, qui ne devrait pas manquer non plus dans les maisons dernièrement construites. La forme de la terrasse vous offre de l'ombre dans le salon de la maison.

Lorsque vous vivez magnifiquement, vous construisez magnifiquement. Quand il y a de l'harmonie dans votre cœur, vous finissez par la matérialiser dans l'espace où vous vivez.

Année
2022
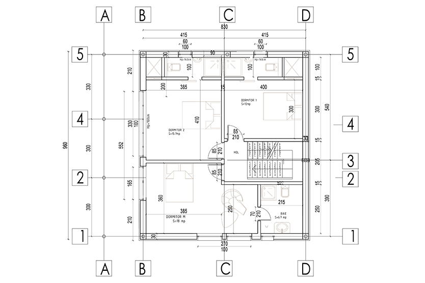
Surface
170 m²
Client
E. Trifan
Typologie
Maison unifamiliale